以文本方式查看主题

-  中信网赛鸽论坛  (http://bbs.chinaxinge.com:1180/index.asp)
--  叽里咕噜(鸽)  (http://bbs.chinaxinge.com:1180/list.asp?boardid=42)
----  准备建棚,大家帮忙估价!  (http://bbs.chinaxinge.com:1180/dispbbs.asp?boardid=42&id=304488)

--  作者:ufoask
--  发布时间:2014-7-13 14:46:02

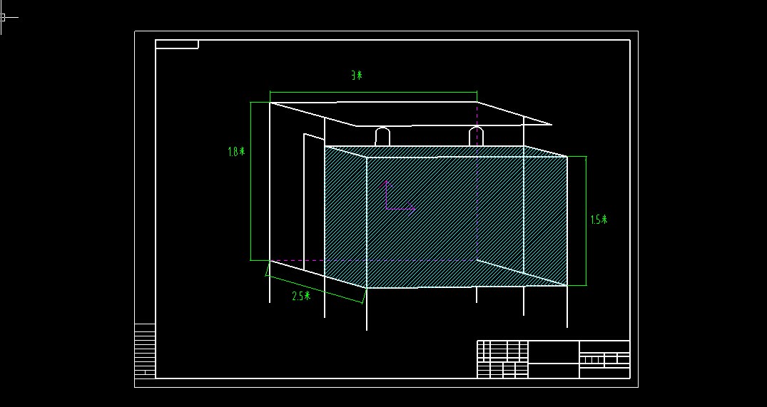
--  准备建棚,大家帮忙估价!
钢结构


[此贴子已经被作者于2014-7-13 14:46:35编辑过]

--  作者:好意友
--  发布时间:2014-7-13 15:01:41

--  
结果当地材料价格而定。
--  作者:东方不败99
--  发布时间:2014-7-13 15:10:52

--  
6000元左右
--  作者:林蛋大
--  发布时间:2014-7-13 15:12:43

--  

2500-3500

全角钢,钢丝网


--  作者:天翊开泰
--  发布时间:2014-7-13 15:46:01

--  
不了解
--  作者:老北京人
--  发布时间:2014-7-13 15:50:03

--  
5000元以下
--  作者:wxn
--  发布时间:2014-7-13 15:51:44

--  
5000以上
--  作者:西123
--  发布时间:2014-7-13 16:18:32

--  

6000元左右

--  作者:太阳之泪
--  发布时间:2014-7-13 16:30:05

--  
彩钢板做的话,算上地网和巢箱,3000左右够了,棚实在不大,种鸟不养只养赛鸽?春秋两季不分棚?进深2.5米倒是不需要,2米也够了
--  作者:神出鬼没
--  发布时间:2014-7-13 16:31:35

--  
3000可以搞的很好了,小了点。
--  作者:冀灬父子鸽舍
--  发布时间:2014-7-13 17:21:53

--  

出入这么大

你们算的准吗


--  作者:haiyang777
--  发布时间:2014-7-13 17:27:27

--  

--  作者:海86423
--  发布时间:2014-7-13 17:43:42

--  
以下是引用天翊开泰在2014-7-1315:46:01的发言:
不了解


--  作者:飞翔的鹰
--  发布时间:2014-7-13 19:28:19

--  

2500


--  作者:131019230
--  发布时间:2014-7-13 21:57:17

--  
不懂
--  作者:tjzhllg
--  发布时间:2014-7-13 22:01:20

--  
用啥料啊!
--  作者:永明赛鸽
--  发布时间:2014-7-13 22:03:24

--  
1000够了
--  作者:lijina
--  发布时间:2014-7-13 23:29:33

--  
多大面积
--  作者:徐家军
--  发布时间:2014-7-14 7:25:29

--  
看了
--  作者:绕过南墙
--  发布时间:2014-7-14 7:41:34

--  
3000可以
--  作者:山燕子联盟
--  发布时间:2014-7-14 8:26:19

--  
不清楚
--  作者:元来如此
--  发布时间:2014-7-14 8:38:02

--  
5000-7000
--  作者:baisheng1113
--  发布时间:2014-7-14 8:45:16

--  自己干~
自己干加防锈~最多2500搞定!
--  作者:22b鸽舍
--  发布时间:2014-7-14 8:45:31

--  
看你材料花多少啦
--  作者:戴常福
--  发布时间:2014-7-14 8:57:23

--  
5000块钱左右,自己干活。
--  作者:fun3012
--  发布时间:2014-7-14 9:20:49

--  
http://bbs.chinaxinge.com/dispbbs.asp?boardID=22&ID=303592&page=1我自己建设中的鸽舍,面积20个平方,目前买镀锌方管和75的泡沫夹芯彩钢板,花了3000多元,买手枪钻、切割机花了400元,电焊机借朋友的后期准备用木条自己钉地网,加木板钉估计材料费2000。你的鸽舍面积7.5平米,估计材料费3000吧如果是报给别人做,估计得要6000元
--  作者:雨水亲亲
--  发布时间:2014-7-14 9:25:40

--  
自己干按最省的材料三千差不多。
--  作者:A23456789A
--  发布时间:2014-7-14 9:49:17

--  

我建的木结构8000多点,估计你的在6000至12000之间。具体看内部怎么做。


--  作者:943399867
--  发布时间:2014-7-14 9:52:17

--  
不知道
--  作者:qq532142795
--  发布时间:2014-7-14 9:53:21

--  
看你用哪种规格的角钢、4*4*1.6的角钢是1米0.965公斤、价格在五千左右一吨、焊工价格在两百多一天、钢丝网是12元左右一米、宽度好像是1、5米
--  作者:东正
--  发布时间:2014-7-14 10:14:40

--  参考一下我的

此主题相关图片如下:
按此在新窗口浏览图片
这是我今年刚建的鸽舍,2米宽4米长,2000元的材料,两个人两天工时。
--  作者:哈哈哈哈哈1
--  发布时间:2014-7-14 10:29:53

--  
如果不密的大概一千元以内
--  作者:长沣无敌
--  发布时间:2014-7-14 10:32:55

--  
材料+人工:6000元以上
--  作者:Jon鸽舍
--  发布时间:2014-7-14 10:46:23

--  
建个像样的,实用的,按照你这个尺寸连工带料加巢箱栖架全弄齐了7000-8000,我是说像样的不是凑合的。
--  作者:孟祥宇
--  发布时间:2014-7-14 12:20:38

--  
3000以内
--  作者:ZT鸽舍
--  发布时间:2014-7-14 12:31:21

--  
有点小5000元足够
--  作者:wjm12345
--  发布时间:2014-7-14 13:03:08

--  
看你用什么材料,新的不锈钢材料价格可能在一万元左右。旧的不锈钢材料可以折价一半。【包括人工费,钢板网,地网,木板巢箱。】
--  作者:mbc
--  发布时间:2014-7-14 13:06:50

--  
扁管8根x70~80元,夹泡塑钢24mx11om,纲板网24mx30元m,人工2人2天,巢格另算。你自己再仔细核算。。。
--  作者:郑名彬
--  发布时间:2014-7-14 13:39:31

--  

--  作者:青云
--  发布时间:2014-7-14 15:06:42

--  不超过4千
不超过4千元
--  作者:诺曼底公爵
--  发布时间:2014-7-14 15:18:01

--  
不了解


--  作者:lilei1972
--  发布时间:2014-7-14 16:55:29

--  
自己做的话不会很贵,现在人工费贵
--  作者:侯钧
--  发布时间:2014-7-14 17:17:29

--  
看你用什么材料
--  作者:gygp
--  发布时间:2014-7-14 17:27:32

--  

外面加工没有7--8000下不来


--  作者:243006001
--  发布时间:2014-7-14 17:34:29

--  
简单的话1000多
--  作者:zxd162446
--  发布时间:2014-7-14 18:52:37

--  
你这个和我的一样,可以说是我的翻版.尺寸.高低风格都一样.我的花了3000块!我觉得我花的不值.很多需要改进.晒笼就花的不值.我觉得你要是弄的话!2000----2500以内控制在2100,2200
此主题相关图片如下:
按此在新窗口浏览图片

--  作者:a999a
--  发布时间:2014-7-14 19:15:29

--  
不了解

--  作者:鸽道轩鸽业
--  发布时间:2014-7-14 19:29:53

--  

--  作者:漳江鸽舍
--  发布时间:2014-7-14 22:15:59

--  
全角钢,地网钢丝网2000元左右
--  作者:他乡过客
--  发布时间:2014-7-14 22:38:44

--  
3000左右
--  作者:789789
--  发布时间:2014-7-14 22:56:15

--  

--  作者:四两
--  发布时间:2014-7-14 23:10:05

--  
底盘用100槽钢3根180元1根角钢国标40角60多元1根6米长彩钢96板45元1米75厚网300元
--  作者:觊羽鸽舍
--  发布时间:2014-7-15 0:55:39

--  
全部用货架三菱钢(带孔的那种),带地网自己做一千元以内。3米长的货架钢好的是18元一根,差的是15元。外面晒笼用带漆的网子,重庆是10元一米(1*1)。棚顶可承受波千瓦,还可随意改动形态,做窗子都没问题,通风效果好!钢材做的地网可承受三百斤的重量,18*20根=360元网子10*10米=100元固定螺丝不要钱,买货架老板要送。厚的木板做墙(可用其他代替比如砖头什么都行)50*6张=300元波千瓦15*4张=60元。共计:820元。唯一坏处:货架钢每过一年要刷漆一次,不然要生锈。


--  作者:861221555
--  发布时间:2014-7-16 15:41:28

--  
3000元左右
--  作者:金太阳种业
--  发布时间:2014-7-29 16:40:35

--  
1000
--  作者:火凤凰鸽
--  发布时间:2014-7-29 19:08:45

--  
结果当地材料价格而定。

--  作者:杜长贵
--  发布时间:2014-7-30 9:14:03

--  
看你的面积有多大了。

Copyright © 2000 - 2024 ChinaXinge.com
Powered By :Chinaxinge
执行时间:125.00000毫秒。查询数据库4次。
当前模板样式:[默认模板]